Dirección
-
Dirección: Gurruchaga 1950, Palermo , Capital Federal , Argentina
-
Localidad: Palermo, Palermo Soho
-
Estado/Municipio: Capital Federal
-
Barrio: Palermo Soho
-
País: argentina
Descripción de la propiedad
PALERMO SOHO – A ESTRENAR – EXCELENTE INVERSIÓN – GASTOS COMUNES BAJOS – VENTA MONOAMBIENTE
Ubicado en el corazón de Palermo, a pasos de Plaza Armenia y Plaza Serrano, zona de bares, restaurantes, arte y diseño.
2º PISO “A” – Unidad al frente
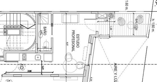
DISTRIBUCIÓN:
Ambiente principal: 6 m x 3,5 m
Cocina integrada
Baño completo con ducha
Balcón corrido: 4,5 m x 1,4/1,5 m
Superficie total: 31 m²
Cubiertos/semi: 24 m²
Balcón: 7 m²
Las superficies son estimativas y con fines orientativos
DETALLES DESTACADOS:
Terminaciones de alta gama: pisos símil madera en porcelanato
Aberturas de PVC con doble vidrio hermético (DVH), que aíslan térmica y acústicamente
Instalación prevista para aire acondicionado
Agua caliente por termotanque eléctrico
Cocina eléctrica
Puerta de seguridad con resistencia al fuego
AMENITIES:
Espacio para bicicletas
Lavadero común
UBICACIÓN PRIVILEGIADA:
A 2 cuadras de Plaza Armenia
A 3 cuadras de Av. Scalabrini Ortiz
A 5 cuadras de Av. Santa Fe
A 6 cuadras de Av. Juan B. Justo
Transporte cercano: líneas de colectivo 15, 36, 39, 55, 57, 110, 111, 141, 160
Consulta por esta propiedad AHORA.
WhatsApp: 1131519928
Oficina: 47765003
VENDE y COMPRA con LEXINTON, inmobiliaria LIDER en realizar compra / venta simultanea.
Tasaciones profesionales.
Las medidas, superficies y valores de esta ficha son aproximadas y a título informativo únicamente.
Martillera y Corredor Responsable:
NORA LEVI CMCPSI 6006 y CUCICBA 5059
Todas las propiedades que figuran en el perfil de Lexinton se encuentran a cargo del profesional matriculado que corresponda, la intermediación y la conclusión de las operaciones serán llevadas exclusivamente por esta persona.
Lexinton Propiedades es una marca registrada.
Matricula Provincia de Buenos Aires: NORA LEVI CMCPSI 6006
Matricula Ciudad de Buenos Aires: CUCICBA 5059
Actualizado el día: 2026-03-15 05:55:22
- Daniel Ferreyra











